
Preencha os campos para que um de nossos especialistas entre em contato
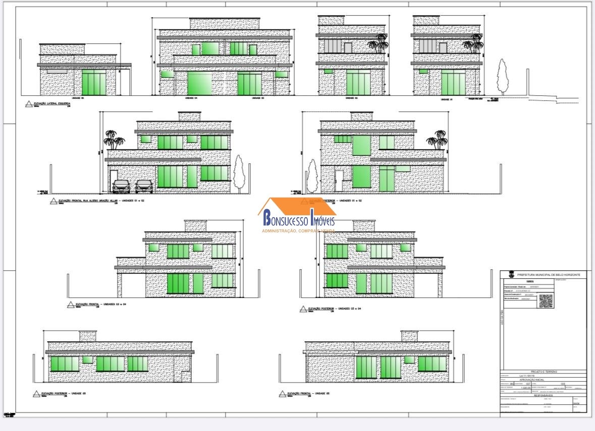
Lote de 1.020m² com projeto de um mcondomínio já aprovado na refeitura municipal de Belo Horizonte, podendo iniciar a obra até janeiro de 2026. 5 Casas, sendo uma térrea e 4 duplex, com 3 quartos cada e garagem para até 3 carros. Casas 1 e 2 com 150m² - Casa 3 e 4 com 134m² e casa 5 com 124m². Entre em contato com nossos corretores para maiores informações. ESTIMATIVAS DE VALORES DE MERCADO PARA VENDA DO IMÓVEIS - OPORTUNIDADE PARA INVESTIDORES. CASA 1 - 150,00m² * R$6.100,00 o m² = R$915.000,00 CASA 2 - 150,00m² * R$5.999,00 o m² = R$899.850,00 CASAS 3 e 4 - 124,00m² *5.900 e 6.000,00 o m²= R$744.000,00 e R$731.600,00 CASA 5 - 134,00 m² * R$6.000,00 o m² = R$804.000,00
Simule seu financiamento em minutos com todos os bancos e consiga a melhor proposta.
Preencha os campos para que um de nossos especialistas entre em contato